保温箱选不好,三天两头修?这些技术细节才是关键!
01.仪表保温箱有哪些技术要求?
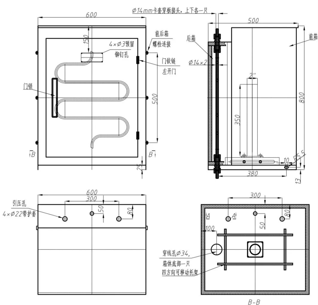
仪表保温箱规格为600mm*600mm*500mm(高×宽×深),正面开门。箱体与箱盖采用可拆卸结构,以便于箱内仪表的安装和维修。结构包括箱体、箱门和底座三部分组成。箱体与箱门上口采用左侧开门轴套连接形式,并装有带把手的门锁,使箱体、箱门能灵活装拆、开启,并有使门保持开位置的装置,开门角度至少135°,更便于箱内仪表的安装和维修。
仪表保温箱外壳材料选用304不锈钢。箱体为不锈钢拉丝本色(另可选配电化学抛光,即:机械抛光)。
仪表保温箱壳体不锈钢板厚度要求:外层厚度为1.5mm,内层厚度为1.0mm。
仪表保温箱带嵌入式双层有机玻璃可视视窗,安装在门正中央。
仪表保温箱上带不锈钢仪表位号铭牌安装在门正中央偏上,铭牌上边距上门框100mm处。
箱体内经喷塑处理的2”仪表支撑管下装四条交叉轨道,供安装仪表时能在箱中前后、左右任意移动以便固定在需要的位置。
门内侧嵌整体加工无缝的橡胶圈,保证与箱体充分的密封。箱内壁(包括箱门)共六个面采用符合国家环保要求的隔热材料作为保温层。保温层厚度至少应有30mm厚。箱内再附镀锌铁皮固定,以免在安装仪表或配管时破坏保温层。
保温箱后部设有蒸汽加热的S型伴热盘管,盘管要求带翅片结构,材质规格按照304Φ14×2.0。进口从箱顶后侧正中进入,出口从箱底后侧正中出去。进出口均应带密封环密封,带2个对焊活接头,与外部伴热管连接为规格为Φ14×2.0对焊。保温箱在冬季正常使用条件下,箱内的温度一般应能保持在15±3℃。
按照盘管规格配置相应规格的散热片和排污阀。散热片和盘管的安装位置须考虑预留排污阀的接口位置;仪表保温箱带散热片材质为不锈钢。
保温箱提供用于电缆及导压管进出的敲落式预留孔,包括内保温层镀锌铁皮预留孔。在箱体的顶部和底部上下对端各留3个平行进出口,供导压管进出箱体。在箱体底部留有一个Φ20电缆进线孔。内部镀锌板开孔为Φ30,穿孔处应有密封环,密封环材质选用三元乙丙橡胶。
卖方提供仪表保温箱的安装底座,底座采用L50×4角钢焊接而成,高度为600mm。
仪表保温箱及底座表面经碱洗去油、酸洗去锈、清水漂洗、磷化、镀锌、打磨、拉丝处理,从而保证了仪表保温箱自身的耐腐蚀性和箱体外表平整、色泽一致。
卖方应提供用于表示仪表位号的铭牌,铭牌材质为304SS不锈钢,尺寸为150mm×40mm×2.0mm,字体采用标准72号Arial字体,着色按照工厂标准执行,出厂时铭牌应安装在箱体正面上方。
供货时提供仪表保护箱安装使用说明书、质量检验报告、材质证明及检测报告、供货清单、产品合格证等相关的证书。
可选特殊要求:仪表保温箱同时应带有温度指示表,温度表表盘直径≤60mm。
仪表保护箱外形尺寸为800*600*500(高*宽*深)箱体外板采用2.0mm 304钢板,内板采用1mm镀锌板,表面拉丝,保温层为20mm聚氨酯保温材料。 箱体顶部及底部各配两只Φ22引压孔,适用引压管外径22mm以下。 标牌采用120*52*1.5,304材质钢板,标牌刻字采用72号Aria1字体,铆接于箱体正面。 蒸汽伴热进出口为1/2”NPT外螺纹接口。 带导压管伴热及卡套式直通穿板接头Φ14。 仪表保温箱规格:800(H)×600(W)×500(D); 仪表保温箱材质为304SS,外壳及底板材料厚度为2.0mm; 保温层采用厚度为25mm硬质发泡聚氨脂板,内胆为0.5mm镀锌板; S型伴热管上进下出,采用Φ14x2不锈钢(304SS)无缝钢管,两头配卡套式直通穿板接头; 保温箱内2"仪表安装管高300mm,底部配交叉式活动轨道; 保温箱靠后背的上、下面各预留2-Φ21.5mm孔,供Φ14导压管的卡套式穿板接头使用; 箱体底部右后方开Φ27.5孔,并配有3/4"PVC电缆密封接头; 箱体表面拉丝抛光,颜色为不锈钢本色。 02.仪表保温箱现场使用情况 左图 对角开门仪表保温(护)箱/右图 正向开门仪表保温(护)箱 图 仪表保温箱(热水伴热) 图 仪表保温箱(蒸汽伴热) 图 仪表保护箱 图 仪表保温箱集中安装 03.HGT 21581-2012自控安装图册(下册) 左图 对角开门保护箱/右图 对角开门保温箱
看完这份仪表保温箱技术要求,是不是解决了你之前选型或安装时的不少困惑?其实很多人在选保温箱时,都会忽略像伴热盘管材质、保温层厚度这些细节,***后导致冬季箱内温度不稳,或是后期维修麻烦。



